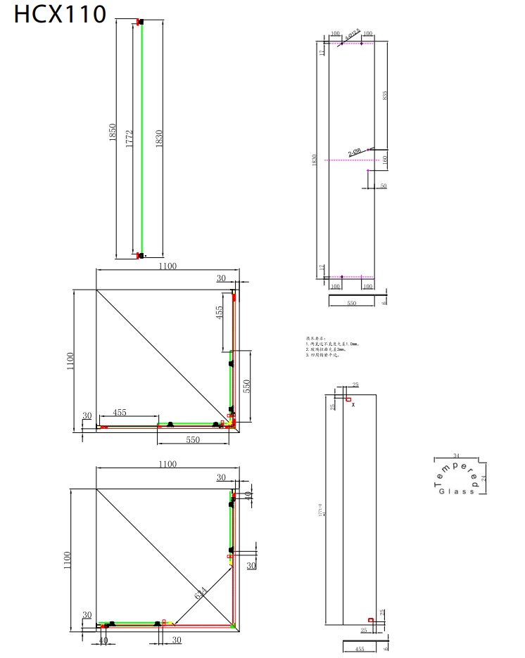
ΚΑΜΠΙΝΑ ΝΤΟΥΖΙΕΡΑΣ ΑΣΥΜΜΕΤΡΗ Axis Offset Corner Entry CX 11072 Clear 110x72 cm
330.00€
280.00€
Καμπίνα ντουζιέρας ασύμμετρη, γωνιακής εισόδου
Axis
μοντέλο
Offset Corner Entry CX 11072,
κρύσταλλο ασφαλείας 6 mm διαφανές
Clear
φινίρισμα χρωμέ
“
Mirror
Finish
”
.
Μοντέρνος σχεδιασμός, καθαρές γραμμές και πολυμορφία.
Ποσότητα
Αγορά
+ Προσθήκη στα Αγαπημένα
+ Σύγκριση
Κατηγορία:
Καμπίνες Ντουζιέρας Ασύμμετρες
Εταιρία:
AXIS
Διαθεσιμότητα: 1-2 ημέρες
SKU:
455-CX11072T-100
Like
tweet