ΚΑΖΑΝΑΚΙ ΕΝΤΟΙΧΙΣΜΕΝΟ GEBERIT Delta Line Duofix 458.160 ΓΙΑ ΚΡΕΜΑΣΤΗ ΛΕΚΑΝΗ ΣΕ ΤΟΙΧΟ ΓΥΨΟΣΑΝΙΔΑΣ

260.00€ 180.00€

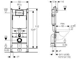
Εντοιχιζόμενο καζανάκι σε τοίχο γυψοσανίδας, πλαισιωμένο με στοιχείο στήριξης για κρεμαστή λεκάνη GEBERIT της σειράς  Delta  Line  μοντέλο  Duofix 458.160. Η Geberit σας προσφέρει την δυνατότητα της επιλογής, ανάμεσα σε διαφορετικά υλικά, χρώματα και σχήματα, ώστε να βρείτε ακριβώς αυτό που ταιριάζει στο δικό σας μπάνιο.

Αγορά
Κατηγορία: Καζανάκια Εντοιχιζόμενα
Εταιρία: GEBERIT
Διαθεσιμότητα: 1-2 ημέρες
SKU: 458.160.00.1